750 Minton RoadCharleston, SC 29412




Mortgage Calculator
Monthly Payment (Est.)
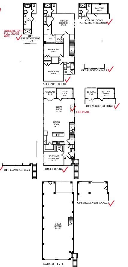
$4,562UNDER CONSTRUCTION; HOMESITE 36 The Bennett floorplan: Nestled in the heart of James Island and situated in a pocket style community, this beautifully crafted Drive under home is designed with thoughtful craftsmanship and sophisticated finishes throughout. This open concept floorplan features a gourmet kitchen, a great room with a fireplace, a sunroom and a screened porch! A versatile front room offers the ideal space for a private home office or study Upstairs you will find the Primary bedroom with a beautiful balcony off the rear, along with the other 2 other bedrooms! This home has been thoughtfully designed completely from the studs to the crown molding, making this platinum series home, a beautiful turn key property in the heart of James Island.
| a week ago | Listing updated with changes from the MLS® | |
| 4 weeks ago | Price changed to $999,990 | |
| 8 months ago | Listing first seen on site |
Listing information is provided by Participants of the CHS Regional MLS. IDX information is provided exclusively for personal, non-commercial use, and may not be used for any purpose other than to identify prospective properties consumers may be interested in purchasing. Information is deemed reliable but not guaranteed. Copyright 2025, CHS Regional MLS.
Last checked: 2025-11-09 02:04 PM UTC
Did you know? You can invite friends and family to your search. They can join your search, rate and discuss listings with you.