450 Tulip Poplar DriveMoncks Corner, SC 29461




Mortgage Calculator
Monthly Payment (Est.)
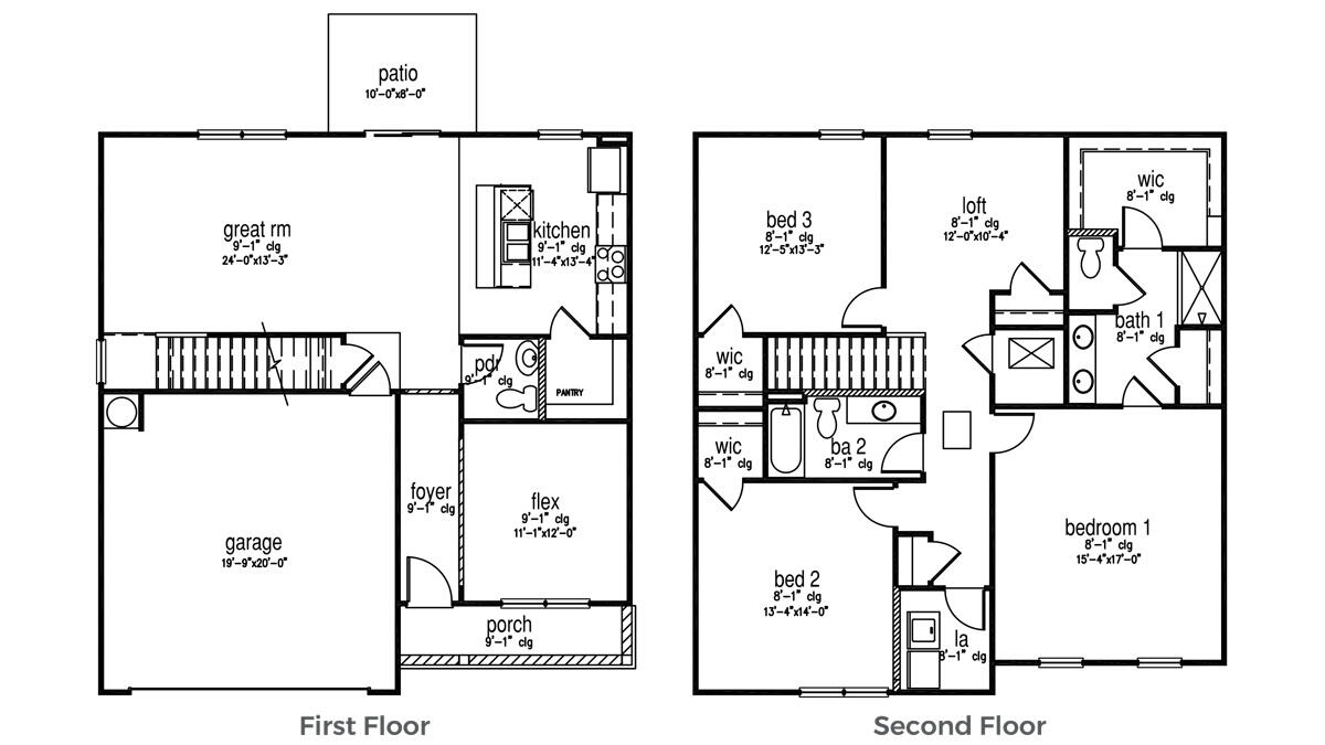
$1,841Customize YOUR homesite on this dirt lot! We are excited to offer you the opportunity to add custom options and personalize this home to fit your lifestyle. From selecting finishes and features to designing spaces that suit your needs, you can truly make this home your own before construction begins.Introducing the Penwell, a thoughtfully designed two-story home offering the perfect combination of style, space, and functionality. This home features 4 bedrooms, 2.5 bathrooms, and a two-car garage. This Penwell is located a short walk away from the stunning resort style amenity center. Step into a welcoming foyer that flows into an expansive great room, creating the perfect space for entertaining or relaxing. The heart of the home is the kitchen, which features stainless steel appliances, elegant quartz countertops, a walk-in pantry, and a beautiful island ideal for preparing meals and hosting gatherings. A versatile flex room on the first floor offers the perfect space for a home office, gym, or playroom. The primary suite serves as a luxurious retreat, complete with a spacious walk-in closet and an en-suite bathroom featuring dual vanities and ample storage. Three additional bedrooms upstairs provide plenty of room for family or guests, each offering comfort and privacy. A shared full bathroom and a centrally located laundry room add convenience and ease to your daily routine. This home is designed with both practicality and luxury in mind, offering premium finishes such as quartz countertops and an open-concept design. With four bedrooms and flexible living spaces, the Penwell floor plan is perfect for families of all sizes. This home includes Window Blinds, a Refrigerator, and Garage Door Opener! Additional features include high-efficiency 15 SEER 2 Carrier HVAC, and a tankless water heater for endless hot water! All new homes will include D.R. Horton's Home is Connected® package, an industry leading suite of smart home products that keeps homeowners connected with the people and place they value the most. This technology allows homeowners to monitor and control their home from the couch or across the globe. Products include touchscreen interface, video doorbell, front door light, z-wave t-stat, and keyless door lock. *Square footage dimensions are approximate. *The photos you see here are for illustration purposes only, interior and exterior features, options, colors and selections will differ. Please reach out to sales agent for options.
| 6 days ago | Listing updated with changes from the MLS® | |
| a month ago | Listing first seen on site |
Listing information is provided by Participants of the CHS Regional MLS. IDX information is provided exclusively for personal, non-commercial use, and may not be used for any purpose other than to identify prospective properties consumers may be interested in purchasing. Information is deemed reliable but not guaranteed. Copyright 2025, CHS Regional MLS.
Last checked: 2025-11-05 07:02 AM UTC
Did you know? You can invite friends and family to your search. They can join your search, rate and discuss listings with you.