454 Tulip Poplar DriveMoncks Corner, SC 29461




Mortgage Calculator
Monthly Payment (Est.)
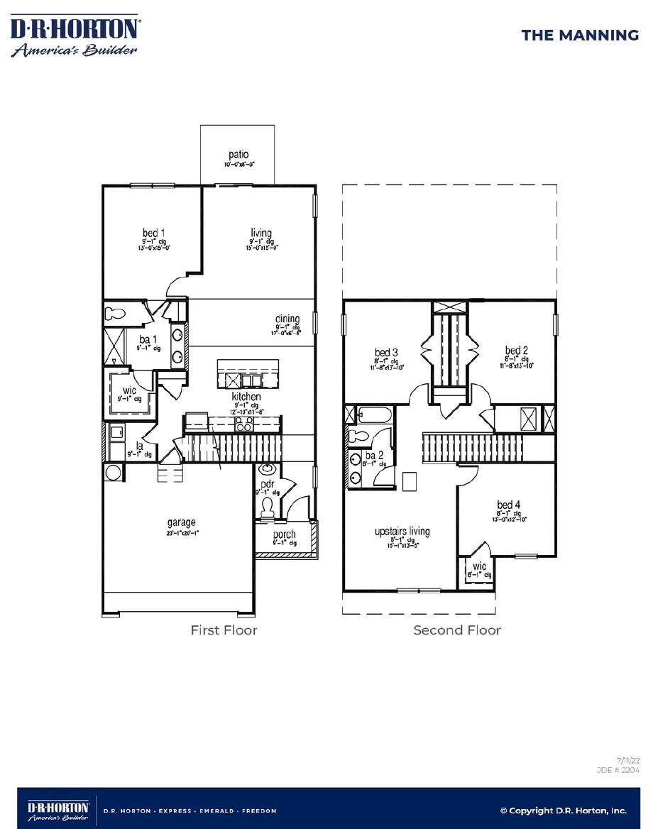
$1,855Customize YOUR homesite on this dirt lot! We are excited to offer you the opportunity to add custom options and personalize this home to fit your lifestyle. From selecting finishes and features to designing spaces that suit your needs, you can truly make this home your own before construction begins.This Horton Favorite offers 4-bedroom, 2.5-bathroom home and a 2-car garage. The homes features a owner's suite on the main level. Entering the great room, we find the dining area, family room and a wonderful cook's kitchen are all together for open living. This beautiful kitchen features quartz countertops, a large kitchen island with room for 4 counter height barstools and there's a pantry too. The stainless-steel appliances include a 4-burner gas range, microwave, dishwasher, and even a refrigerator! The first-floor features wood inspired flooring that's beautiful and wears like iron - no carpet! The owner's suite is a large bedroom with space for sitting area at one end and owner's private bathroom at the other. The owner's bath has a walk-in closet, private toilet, dual vanities, and a huge 5-foot-wide walk-in shower. At the top of the stairs is a large second family room, 3 large bedrooms and a bathroom where the vanities are separate from the tub/shower and toilet area. There are 3 secondary bedrooms at the back of the home and a 3rd full bathroom with double vanities. The laundry room is thoughtfully located on the main level for easy access from the owner's suite. All new homes will include D.R. Horton's Home is Connected® package, an industry leading suite of smart home products that keeps homeowners connected with the people and place they value the most. This technology allows homeowners to monitor and control their home from the couch or across the globe. Products include touchscreen interface, video doorbell, front door light, z-wave t-stat, and keyless door lock. *Square footage dimensions are approximate. *The photos you see here are for illustration purposes only, interior and exterior features, options, colors and selections will differ. Please reach out to sales agent for options.
| 6 days ago | Listing updated with changes from the MLS® | |
| a month ago | Listing first seen on site |
Listing information is provided by Participants of the CHS Regional MLS. IDX information is provided exclusively for personal, non-commercial use, and may not be used for any purpose other than to identify prospective properties consumers may be interested in purchasing. Information is deemed reliable but not guaranteed. Copyright 2025, CHS Regional MLS.
Last checked: 2025-11-05 07:02 AM UTC
Did you know? You can invite friends and family to your search. They can join your search, rate and discuss listings with you.