276 Huguenot TrailHuger, SC 29450




Mortgage Calculator
Monthly Payment (Est.)
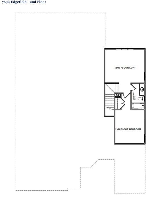
$3,373Welcome Home to The Enclave at French Quarter Creek! Beautiful all ranch community, tucked away along the outskirts of the Francis Marion National Forest, minutes to nearby Mount Pleasant shopping/dining, I-526, Daniel Island and quick access to both Wando and Cooper River! Pre-Construction home starting soon! Lot 367 Edgefield A w/3car garage is a spacious 4BR/3.5 ranch home w/abundance of open airy spaces! Featuring 3 1st floor bedrooms, formal dining room, 1st floor office, rear family room w/picture windows overlooking expansive back yard & pond! Enjoy a beautiful designer kitchen w/large center island, walk-in pantry and adjacent butler pantry for additional storage and serving space. Additional features to love include a 2nd floor loft, rear covered porch and 3rd car garage!
| 5 days ago | Listing updated with changes from the MLS® | |
| 5 days ago | Price changed to $739,292 | |
| 6 days ago | Listing first seen on site |
Listing information is provided by Participants of the CHS Regional MLS. IDX information is provided exclusively for personal, non-commercial use, and may not be used for any purpose other than to identify prospective properties consumers may be interested in purchasing. Information is deemed reliable but not guaranteed. Copyright 2026, CHS Regional MLS.
Last checked: 2026-03-22 04:42 AM UTC
Did you know? You can invite friends and family to your search. They can join your search, rate and discuss listings with you.